-
項目案例丨中建八局綠色低碳技術應用詳解
時間:2024-08-20 13:27:31 作者:GBWindows 來源:行業網站 閱讀:1463內容摘要:導讀——————————————作為國家加快推進新質生產力發展戰略布局的重要一環,建筑綠色化、低碳化已成為建筑行業發展的必然趨勢,中建八局在建筑綠色低碳設計領域具體實踐中,通過與建筑融合的被動式策略以及充分應用科技創新的主動式策略,進行多方面的探索。其中位于中建綠色產業園中的——......導讀
——————————————
作為國家加快推進新質生產力發展戰略布局的重要一環,建筑綠色化、低碳化已成為建筑行業發展的必然趨勢,中建八局在建筑綠色低碳設計領域具體實踐中,通過與建筑融合的被動式策略以及充分應用科技創新的主動式策略,進行多方面的探索。
其中位于中建綠色產業園中的——中建八局人才發展中心(山東)和中建八局建筑綠色低碳技術實驗室,分別是建筑融合被動式策略、應用科技創新的主動式策略為主的典型代表。
下面我們來扒一扒,這兩棟建筑分別有什么綠色低碳黑科技吧! ——————————————

中建八局人才發展中心(山東)是由中建八局全過程獨立設計、施工、運營,集辦公、培訓、食宿、觀展于一體的綜合性建筑,我們意圖通過設計手段,將低碳技術融入建筑本身,通過建筑設計自身的被動式措施,降低建筑建造和運行過程中的能耗水平及碳排放量。接下來便是應用在中建八局人才發展中心(山東)項目中的低碳黑科技:
01
體型系數控制
somatotype coefficien control

通過對建筑的形體進行全方位的模擬推倒,以集約的設計策略將體型系數由0.4降低至0.23,將建筑體型系數控制到極致,最大程度減少建筑的熱交換面。緊湊的形體容納了多元的使用功能,節約了有限的土地資源,降低約15%的運行碳排放。
02
通風庭院
ventilated courtyard

設計在傳統建筑中汲取靈感,讓建筑擁抱自然。建筑中植入了庭院空間,為內部空間提供自然采光,減少人工光源的使用;同時庭院空間通過側向的開敞與周圍的建筑空間形成空氣對流,使室內空間獲得自然通風,有效改善建筑環境的微氣候,提升人們在建筑中的自然感受。
03
建筑自遮陽系統
building self shading system
通過分析建筑不同季節的使用場景以及所在區域的太陽高度角,經過反復推敲決定在南向房間針對性采用水平遮陽,避免夏季陽光直射增加室內熱輻射;而在冬季時,太陽高度角恰好能照進室內,為室內提供足夠熱量。在西向房間,設計采用擋板遮陽,減小夏季西曬影響,在降低空調運行能耗的同時,形成的視線遮擋保證了內部空間的私密性,達到低碳技術與建筑功能的和諧統一。
04
保溫裝飾一體化系統
integrated insulation and decoration system

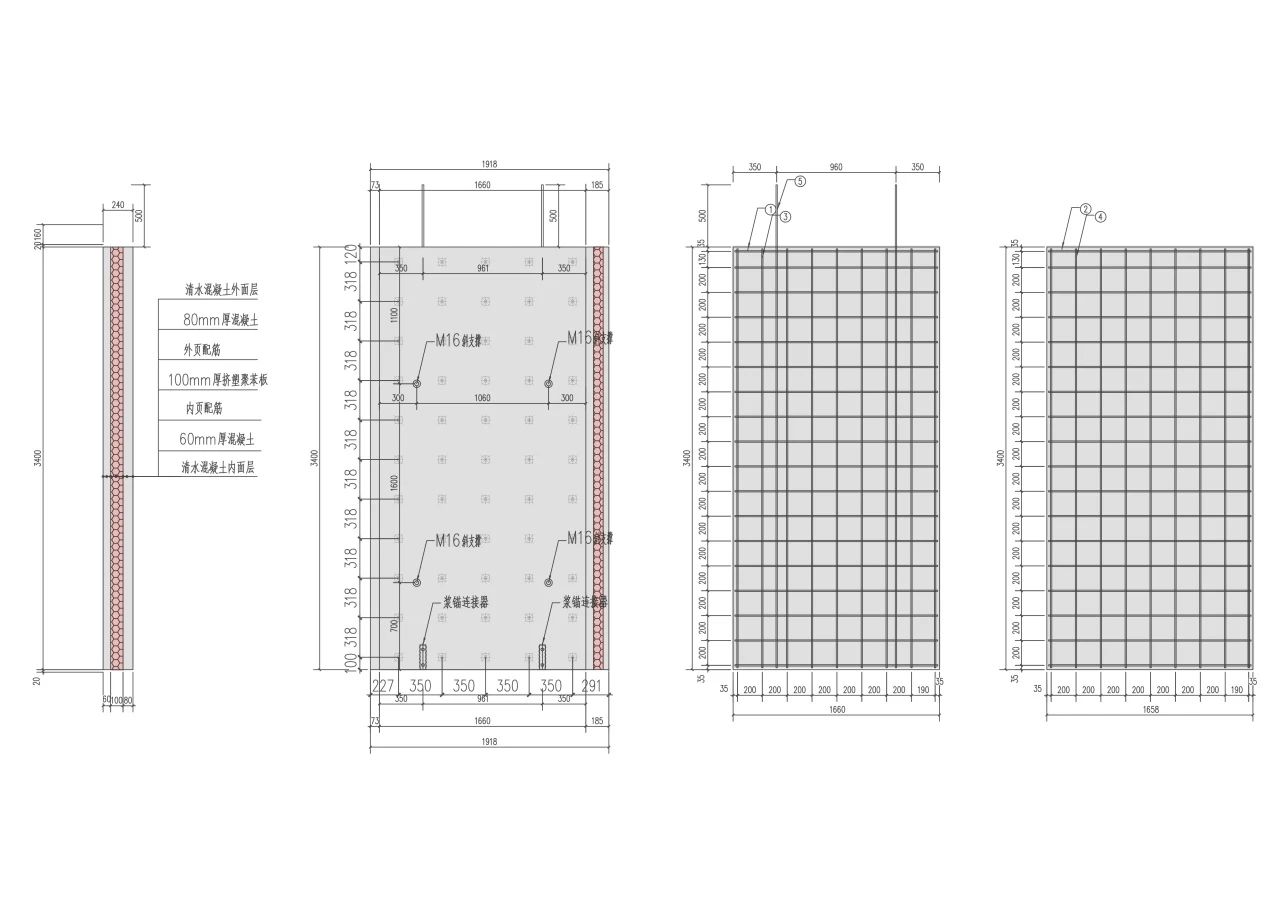
相比于傳統外維護墻體現澆砌筑的建造方式,設計團隊在公寓立面上創新采用裝配式清水混凝土保溫裝飾一體化系統,相比于傳統現澆的方式,使用裝配式、模數化在全生命周期下能夠實現節碳約40%,有效實現建筑的節能減排。
05
Low-e玻璃
Low-e glass

本項目在公寓以及教室等部位均采用了低輻射Low-e玻璃,在冬季能夠保持室內的熱量不外泄,在夏季Low-e玻璃可將遠紅外熱輻射反射出去,從而阻止熱量進入室內。比普通玻璃及傳統建筑用鍍膜玻璃相比,相對于普通中空玻璃節能約40%。
06
太陽能耦合熱水系統
Solar coupled hot water system

在公寓樓屋面設置“無動力承壓式太陽能集熱器”和“一次加熱式空氣源熱泵機組”耦合系統制備生活熱水,每年可平均降低碳排放量51.2噸。
07
智能建筑
Intelligent Building

多維度的智能化系統讓建筑變得更“聰明”。建筑內部采用的智能化照明,可以根據使用場景調整燈光亮度,降低照明能耗。智能化會議、智能客控、智能信息發布等系統讓建筑的整體運維和各類會議。

中建八局人才發展中心(山東)在設計策劃階段便引入被動式設計理念,將低碳思維貫穿設計、施工、運維全過程,在建筑中自然和諧的融入綠色技術。自建成以來,已成為被動式建筑的典范,已獲得山東省優秀方案獎、濟南市勘察設計一等獎、上海市建筑學會建筑創作提名獎等多項榮譽。

在全面推進碳達峰、碳中和目標的背景下,近零能耗建筑、零碳建筑已成為未來建筑的發展趨勢。中建八局建筑綠色低碳技術實驗室以近零能耗作為設計標準,設計能耗水平比國家《公共建筑節能設計標準》GB50189-2015降低65%以上;集合采用了主、被動太陽能的設計策略及裝配式建造的方式,并通過模仿各類使用場景,為各類綠色技術的研究測試提供有效的使用載體。
01
保溫隔熱體系&多功能一體化超高性能混凝土輕鋼龍骨復合外墻
Thermal insulation system &Multi functional integrated ultra-high performance concrete light steel keel composite exterior wall


利用“棉被效應”,將外墻整體傳熱系數降低至0.19W/(㎡·K)、屋面傳熱系數降低至0.12W/(㎡·K)。通過外墻和屋面的高性能保溫措施,讓房子形成類似保溫盒的“鎖溫”空間,大幅度降低室外氣溫變化對室內熱環境的擾動,保持室內溫度穩定,實現冬暖夏涼。建筑外立面采用多功能一體化超高性能混凝土輕鋼龍骨復合外墻,該墻板是一種集結構、保溫、裝飾、防水、防火、耐久多功能一體化的水泥基圍護墻板,通過研發斷熱橋構造及連接件,大幅減少傳統墻板冷熱橋問題,改善節能薄弱區,實現高效節能,能夠實現外墻多功能協同,滿足多目標需求,是“十四五”國家重點研發計劃項目“多功能一體化水泥基圍護結構體系”重點研發的外墻部品之一,適用于嚴寒、寒冷、夏熱冬冷和夏熱冬暖地區的超低能耗、(近)零能耗建筑。此外,采用A級石墨烯高效節能保溫材料,材料導熱系數低至0.025W/(m·K),保溫層厚度可降低約40%,可大幅降低墻體厚度。
02
立體太陽能
Stereoscopic solar energy

設計團隊創新性地采用了復合化的立體太陽能,以測試不同類型太陽能的發電效率。其中南立面外墻采用BIPV光伏幕墻,將光伏組件與建筑圍護結構有機結合,?讓光伏板成為建筑的外立面,?形成獨特的“建筑表情”。女兒墻南側采用PVT光熱一體化技術,將來用于驗證太陽能光熱兩方面的綜合利用效率。屋面設置BAPV分布式單面及雙面單晶硅光伏板,以對比分析雙面及單面光伏的發電效率。整個立體太陽能系統裝機容量可達24.3KW,年發電量約22200KW·h,能夠覆蓋建筑的全年能耗,達成建筑的零碳運行。
03
光儲直柔
Light storage straight and softSolar photovoltaic, Energy storage, Direct current and Flexibility

在設計中引入光儲直柔技術,通過設置儲能裝置、柔性用電調節裝置、直流燈具及充電樁等使用終端,與太陽能光伏共同構成從能源產生到使用的閉環。通過此技術的應用,太陽能的發電利用率得到大幅提升,光伏發電可直接用在直流照明、充電樁等末端設備中,避免了傳統交流配電系統在轉換過程中造成的能量損失,?同時通過儲能和柔性交互技術的結合,降低了電力系統的波動性,保證電力供應的穩定可靠。
04
地源熱泵
Ground Source Heat Pump

建筑采用地埋管地源熱泵復合系統實現供冷供熱。地埋管換熱器分區域布置在本工程建筑物周邊室外綠化處,每4井一聯,U型管支管直接與聯箱連接,它們以水為媒,從穩定的大地熱源中取熱,帶來優異的節能效果,比傳統水系統節能20%以上。
05
組合式空調
Modular Air Conditioning Unit

空調末端采用熱回收組合式空調機組+VAV變風量模塊、被動式冷梁、冷輻射頂面及風機盤管,形成多種空調末端的形式,在節能降耗的基礎上,實現多種系統形式運行效果和能耗的對比,真正實現零能耗和實驗性復合場景建筑的結合。
06
氫燃料電池
fuel cell

除了傳統的儲能設備,建筑還增設了氫燃料電池,用于測試化學能的供能效率及供能穩定性。氫燃料電池通過氫燃料的氧化產生能量和水,全過程沒有污染物的產生,是目前最環保的綠色能源之一。
07
智慧管理平臺
Smart Management Platform

實驗室搭建了一套定制化智慧管理平臺,將整個建筑內的設備運行狀態進行三維可視化展現,同時對建筑內各設備運行數據進行處理分析,能夠針對建筑能耗狀態開展對應控制策略研究,實現全天候監控,有效提高能源效率。
相比于中建八局人才發展中心(山東)的被動式設計策略,中建八局建筑綠色低碳技術實驗室在設計中讓建筑主動地披上“科技外衣”,在增強建筑自身保溫隔熱性能的同時,充分開發利用太陽能、地熱能、風能等能源形式,創新機電設備、使用終端的能源傳輸方式,提升能源利用效率,并作為示范工程為未來全面實現零碳建筑提供實踐經驗。
聲明:本站所有內容,凡注明來源:綠建之窗”或“本站原創”的文字、圖片等,版權均屬本網所有,其他媒體、網站等如需轉載、轉貼,請注明來源為“綠建之窗”。凡注明"來源:XXX"的內容,為本網轉載自其他媒體,轉載目的是傳遞更多信息,并不代表本網贊同其觀點和對其真實性負責。如有侵權,也請第一時間聯系我們。對不遵守聲明或其他違法、惡意使用本網內容者,本站保留追究其法律責任的權利。管理員QQ: 4993067 32533240,緊急聯系方式:18501126985 13693161205。
- 相關文章
-
-
12-09河南省住房和城鄉建設廳等部門關于強化金融支持綠色建筑產業發展的通知
-
12-06建筑產品碳標簽:從 “被動合規” 到 “主動領跑”,建筑企業的 “綠色競爭力” 該如何打造?
-
12-06一文讀懂綠色建筑:環保與舒適的完美融合
-
12-04關于《福建省綠色建筑新技術擬推廣目錄(2025年)》的公示
-
12-03吉林▎超低能耗建筑項目最高補助200萬
-
11-30全球五大綠色建筑標準
-
11-30什么是中國的綠色建筑
-
11-28河南省節能降碳專項資金及項目建設管理辦法
-
新聞資訊
本欄最新更新
-
01-15江西廣東▎印發《零碳園區建設方案》,建設任務:江西10個、廣東25個
-
01-15遼寧省住房和城鄉建設廳|關于印發《遼寧省“好房子”評價導則(試行)》的通知
-
01-14江西 廣東 ▎印發《零碳園區建設方案》,鼓勵園區新建建筑對標超低能耗建筑
-
01-14湖南省發布新版綠色建筑工程設計要點將于2026年起執行
-
01-13廣州|《美麗廣州建設規劃》印發,要求建設一批近零能耗建筑工程
-
01-13加大“好房子”供給!住建部發文
-
01-12把握好高質量發展和高水平保護的關系
-
01-12《綠色工廠評價通則》國家標準發布
-
01-11讓“好房子”成為綠色建筑和建筑業提質升級的最大應用場景
-
01-11綠色建材迎來利好!商務部等9部門聯合發文推進綠色消費
本欄推薦
閱讀排行
通信地址: 北京市豐臺區南四環西路128號院諾德中心一期2號樓12層1201室 郵編:100070 網站合作:QQ:1658253059 電話: 13693161205 18501126985
京公網安備11010602007284號 京ICP備14061276號-3
51LA統計




