-
文章精選丨近零能耗建筑設計及節能降碳技術應用分析
時間:2025-07-28 10:55:22 作者:GBWindows 來源:原創文章 閱讀:605內容摘要:本文以岳麓山實驗室集聚區農科院片區B2棟為研究對象,探索夏熱冬冷氣候區近零能耗公共建筑的節能降碳技術路徑。研究結果顯示,與參照建筑相比,設計建筑本體節能率為24.66%,綜合節能率達62.33%,可再生能源利用率達57.65%,達到GB/T51350—2019《近零能耗建筑技術標準》要求。結論表明,結合地區氣候特征的主...
本文以岳麓山實驗室集聚區農科院片區 B2 棟為研究對象,探索夏熱冬冷氣候區近零能耗公共建筑的節能降碳技術路徑。研究結果顯示,與參照建筑相比,設計建筑本體節能率為24.66%,綜合節能率達62.33%,可再生能源利用率達57.65%,達到GB/T 51350—2019《近零能耗建筑技術標準》要求。結論表明,結合地區氣候特征的主動與被動式節能降碳技術,輔以可再生能源利用,可顯著降低建筑能耗與碳排放,為夏熱冬冷地區近零能耗建筑發展提供可推廣經驗。
項目概況
岳麓山實驗室集聚區項目旨在打造一個集品種創新、 基礎研究、創業孵化、共享服務于一體的現代化高標準國家級農業實驗園區,形成具有強大集聚功能、輻射能力和示范帶動作用的總部聚集區。其中,B2棟成果展示中心位于項目中心,建筑面積為4 744.26 m2,采用框架結構,是湖南省首個近零能耗辦公建筑典范。
項目實現近零能耗目標的主要技術路徑是通過被動式建筑設計,提升圍護結構保溫隔熱性能,最大限度降低建筑供暖、空調、照明需求。 長沙市夏熱冬冷的氣候特征導致了公共建筑全年空調供暖能耗的增加。因此,本項目結合地區氣候特征、建筑用能特征和設計理念,項目采取以下主要技術路徑:被動式設計優先,主動式技術優化,可再生能源補充。整體技術方案如圖1所示。

圖1 整體技術方案示意圖
被動式設計
-
平面布局與形體設計
近零能耗建筑作為節能降耗性能優異的建筑典范,在整體規劃設計中,通過確立一系列科學合理的總體原則, 能從源頭引導建筑性能的實現,確保建筑在全生命期內都能達到近零能耗的目標。項目總平面圖如圖2所示。

圖2 項目總平面
項目從規劃階段開始,通過控制建筑密度、區域微氣候營造等角度創造近零能耗建筑發展的前提條件,在建筑群規劃時,充分利用自然能源,降低冬季采暖能耗和夏季制冷能耗。同時,通過建筑群空間布局分析,營造適宜的風環境,降低冬季冷風滲透,夏季增強自然通風,通過景觀設計, 減少熱島效應,降低夏季新風負荷,提高空調設備效率。
B2 棟設在整個基地的中心,被試驗田包圍,建筑體形設計力求規整緊湊、簡潔、有利于近零能耗建筑節點設計的同時,還要最大限度地減小體形系數,同時確保控制各朝向窗墻比,達到降低夏季太陽熱輻射的設計目標。
項目的功能房間平面布局均進行細致推敲,避免在東西向設置較大的外立面。同時建筑體形的變化,與供暖和空調負荷及能耗的大小有密切的關系,凹凸越多,能耗越大。 因此建筑體形系數設計為0.19,避免體形系數過大,增加圍護結構負荷。
在窗墻面積比的控制上,在保證采光的前提下,鑒于項目建筑空間有特定需求(需設有大型展覽區域),南向的窗墻面積比控制為0.57,對東、西向以避免設置主要功能房間外窗為主,通過利用外窗(包括透明幕墻)通風,既能提高熱舒適性,又能節省能耗。
項目的平面布置,立面設計均結合場地自然條件對建筑物的間距、體形、朝向等進行優化設計,充分考慮建筑物獲得良好日照與自然通風,合理組織綠地和水域,減少硬化地面,改善建筑室內外夏季熱環境,減少冬季不利風向。充分利用自然通風、天然采光、太陽得熱,控制體形系數和窗墻比等,為后續定量分析優化打下堅實的基礎。
-
室內外風環境優化和自然采光利用
湖南地區過渡季充分利用自然通風是效降低空調能耗的重要手段。項目通過設置通風中庭及挑高空間,在高大空間頂部和底部設置可開啟的開啟部件,在建筑迎風面和背風面設置自然通風開啟扇,利用建筑高度在建筑頂部設置可開啟天窗等方式,增強熱壓和風壓的作用效果,自然 通風模擬如圖3所示。

圖3 自然通風模擬
在辦公區域增加開窗透光面積,以降低辦公照明所帶來的能耗。針對展覽空間,在中庭部位設計了多組條狀采光天窗。通過利用中庭頂部的太陽光線,保證開敞展覽空間的天然光利用。2層中心區域空間的的天光照度及采光均勻度,降低照明能耗,自然采光模擬如圖4所示。

圖4 自然采光模擬
-
近零能耗圍護結構節能設計
圍護結構性能提升:圍護結構能耗占建筑總能耗的44%~49%,因此 提升圍護結構熱工性能至關重要,可以提升建筑整體保溫隔熱性能、建筑能效、熱環境舒適度。因此,本項目對圍護結構熱工性能提升方案如下。外墻采用的是90 mm厚巖棉板,其平均傳熱系數為 0.48 W/(m2·K);平屋面采用難燃型擠塑聚苯板作為保溫材料,厚度為140 mm,平均傳熱系數為0.25 W/(m2·K),屋面保溫層上方設置防水層,防水隔汽層位于保溫板下面覆蓋屋面和女兒墻內側墻體;首層幕墻采用明框幕墻,三玻兩腔中空玻璃,傳熱系數為 1.55 W/(m2·K),夏季遮陽系數0.37,冬季遮陽系數0.37,可見光透射比0.62,2層采用隱框幕墻,兩玻一腔中空充氬氣,傳熱系數為1.70 W/(m2·K),夏季遮陽系數0.40,冬季遮陽系數0.40,可見光透射比0.63;天窗采用兩玻一腔中空充氬氣,傳熱系數為1.99 W/(m2·K), 夏季遮陽系數0.42,冬季遮陽系數0.42,可見光透射比0.62。
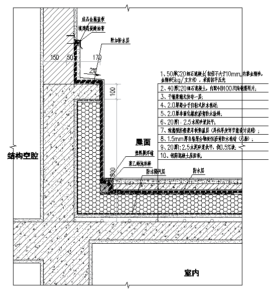
關鍵部位斷熱橋:近零能耗公共建筑圍護結構保溫層應連續完整,對于無法連續的部分,采用斷熱橋專用組件進行設計,具體構造如圖5至圖8所示。本項目的圍護結構的設計避免了破壞或穿透,確保了管線穿越時的保溫連續性,無空洞。在建筑部件連接處,保溫層保持連續無間隙,同時減少幾何結構變化以降低散熱面積。對于潛在的熱橋構造,進行了加強保溫隔熱設計,以減少熱流通量。通過針對關鍵冷熱橋節點的二維冷熱橋傳熱分析,根據GB 50176—2016《民用建筑熱工設計規范》要求和規定,在室內設計溫、濕度條件下驗算建筑屋面和外墻熱橋部分的內表面是否有結露現象,結果如表1所示。經驗算,線性熱橋節點內表面最低溫度大于室內露點溫度(10.14 ℃),滿足結露驗算規定,熱橋節點部位不會發生結露。

圖5 層間熱橋大樣圖

圖6 透氣管出屋面節點大樣圖
圖7 屋面天窗大樣圖
圖8 女兒墻泛水大樣圖
表1 結露驗算表
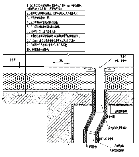
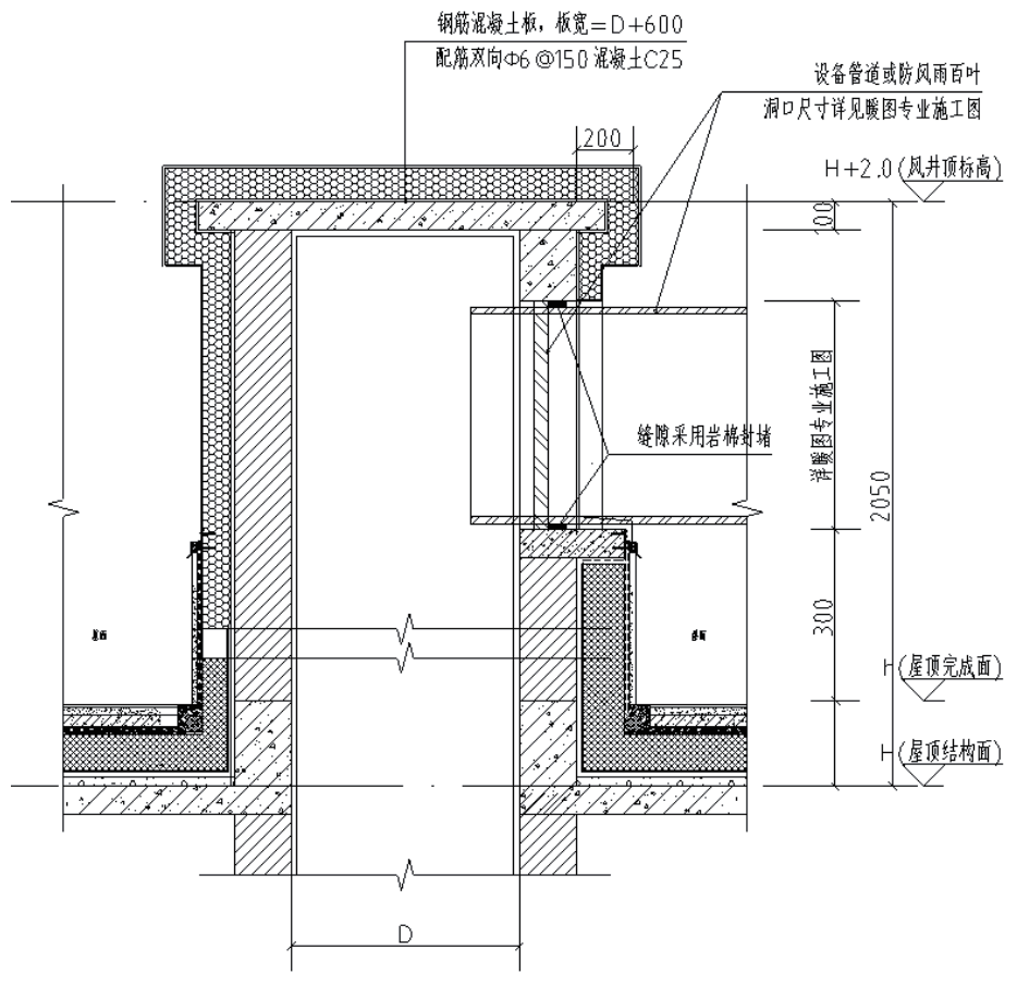
氣密性設計:在高氣密性設計方面,通過采用簡潔的造型和精細的細節處理,有效減少了漏氣節點區域的出現。選用的外門窗和幕墻均達到高級別的氣密性標準(門窗為6級,幕墻為4級),并運用了如防水隔汽膜、專用膨脹密封條、專用氣密性處理涂料等高氣密性材料進行封堵處理。此外,對于門窗、洞口、電氣接線盒、管線貫穿等易出現氣密性問題的部位,進行了特殊節點設計,以確保整體結構的氣密性。具體構造如圖9至圖12所示。

圖9 預埋構件縱剖圖
圖10 排水立管、橫管管卡隔聲、保溫節點圖
圖11 屋面排水管做法大樣圖
圖12 出屋面風井大樣圖
主動式優化
-
高效供暖空調系統節能技術
暖通空調冷熱源及系統形式:夏熱冬冷地區公共建筑空調供暖能耗占比較大,因此選用高能效的供暖空調設備,對降低建筑總能耗和提升室內舒適度會產生顯著的積極影響。本項目集中空調系統冷熱源采用蒸發冷卻式雙高效熱泵+氣懸浮一體式冷水機組, 夏季制冷冬季供熱,采用環保制冷劑。冷水機組能效比為 5.35,雙高效熱泵制冷能效比為4.35,優于GB/T 51350— 2019《近零能耗建筑技術標準》的要求;冬季僅雙高效熱泵機組運行,供回水溫度為45/40 ℃。總冷負荷為535 kW, 冷指標為152 W/m2;總熱負荷為 119.7 kW,熱指標為 34 W/m2。空調末端展廳、大堂采用吊柜空調機組加新風系統,辦公室及接待室采用風機盤管加新風系統。
高效熱回收新風系統:近零能耗建筑需具備優良氣密性,但自然通風受限,因此需要設置新風系統,其在公共建筑空調系統總負荷中的占比超過70%。因此,本項目新風系統采用4臺轉輪熱回收式組合式空調機組,新風機組采用兩級過濾,初效過濾器采用板式過濾器,中效采用板式高壓靜電過濾器,其 PM2.5 一次凈化效率高于90%;新風機組單位風量耗功率為0.149 W/(m3·h),全熱回收效率高達70%,所有機組可根據室內PM2.5 、CO2 濃度和露點溫度等變頻調速運行,從而充分保證室內環境衛生需求。
-
照明及電氣設備節能
項目區域照明設備如表2所示。
表2 項目區域照明

根據建筑使用情況及天然采光情況,對照明進行分區、分組控制;公共活動區域照明(含廣告、標識)采用智能燈光控制系統;普通照明及各種豎井等處的照明采用就地設置照明開關控制。項目照明能耗從76 410.21 kW·h 降低到51 587.7 kW·h。模擬結果表明,采用高能效節能燈具與智能照明控制系統具有優秀的節能效果,且性價比較高。
-
智能化與能耗監測平臺
通過建筑能耗監測系統對建筑能耗進行分類和分項計量,利用遠程傳輸技術及時采集能耗數據,實現重點建筑能耗的在線監測和動態分析。在主要功能房間設置PM10 、PM2.5 、CO2 濃度的空氣質量監測系統,對PM10 、PM2.5 、CO2 分別進行定時連續測量、顯示、記錄和數據傳輸,監測系統對污染物濃度的讀數時間間隔不大于10 min;且樓頂的天窗設置聯網智能開閉功能,根據室外天氣或室內環境等因素實現自動監測,自動開閉。
減碳效果分析
項目采用PKPM—PHEnergy被動式低能耗建筑模擬分析軟件計算整體能耗,軟件包含圍護結構系統、空調系統、新風熱回收計算等模塊,嚴格遵循國家及地方相關的被動式低能耗設計規范,是我國被動式低能耗建筑領域進行深達到51.71% 時,建筑的節能率從24.76%躍升至51.48%,體現了可再生能源在建筑能耗節約方面的顯著作用。
-
可再生能源減碳
可再生能源主要包括太陽能、風能和地熱能等,其中利用太陽能對建筑進行能源補償具有來源廣泛、環保可持續、技術成熟以及性價比較高等多方面的優勢。項目所處的長沙市,新能源資源稟賦較為一般,水力資源開發利用程度高,風能資源屬于Ⅳ類地區,太陽能資源屬于Ⅲ類地區, 地熱能資源規模化利用尚未形成成熟的商業模式,新能源開發增量空間比較有限,光伏發電是比較經濟可行的選項。由于立面薄膜光伏發電系統的不穩定性和造價較高等緣故,本項目在屋頂安裝太陽能光伏組件,選用550 Wp單晶硅 光伏組件,共安裝220塊,總裝機容量為121 kWp,面積 為514 m2,選用架高安裝(雨棚形式),內設導水槽,太陽能光伏發電系統年發電量10.30萬 kW·h,預計每年可節約電費8萬元;同時,項目采用“自發自用,余量上網”模式, 在屋面設置1臺70 kW+1臺30 kW組串式逆變器,共1個 并網點,采用400 V低壓并網。
-
能效指標及運行減碳
本項目通過多種優化措施,與參照建筑對比,建筑總能耗從274 028.11 kW·h 降至 206 442.91 kW·h,建筑綜合能耗(不包含可再生能源)從 151.32 kW·h/m2降至 114.00 kW·h/m2,建筑本體節能率(不包含可再生能源)為 24.66%,建筑屋頂光伏年產能量為 103 211.2 kW·h,建筑綜合節能率為62.33%,可再生能源利用率為57.65%, 滿足GB/T 51350—2019中的近零能耗建筑能效指標要求,具體能效指標如表3所示。
表3 項目能效指標

總 結
與標準辦公建筑相比,位于夏熱冬冷氣候區的近零能 耗公共建筑需結合本地區特點選取并實施節能低碳技術策略,同時進行深入優化與改進。在被動式設計上,全面考量了地區性氣候條件和建筑位置所帶來的獨特環境效應,運用了低體形系數、合理的窗墻比率、建筑遮陽等策略,并將它們與近零能耗圍護結構技術相結合。選用了保溫層完整且連續的高性能圍護結構材料,若保溫層在構造上難以實現連續,則采用斷熱橋專用組件來進行斷熱處理或削弱熱橋效應,從而大幅提升建筑的節能性能;通過實施主動式 節能手段,提升了暖通空調、電氣照明等系統的能效,從能 源使用源頭減少了全年的能耗,并提高了能源利用效率。同時,整合了建筑能耗監控系統,對建筑的能耗狀況進行實時跟蹤與管理,利用數據分析手段來優化能源使用,達到了對建筑能耗的全面監管和智慧運行;在可再生能源的利用上,充分挖掘了建筑及其周邊環境中的可再生能源潛力,將其作為實現近零能耗目標的關鍵途徑,通過減少對非可再生能源的依賴,以降低建筑運行階段的能耗。此外,還對建筑的室內通風、自然采光等方面進行了改進,并將這些改進措施與具體的近零能耗建筑技術相結合,顯著提高了室內環境質量,同時促進了辦公建筑的節能與減碳效果。
本項目在滿足建筑內部健康舒適性的同時,通過各種技術手段降低建筑50 a能耗運行費用,建筑運行階段經濟效益顯著,為湖南省建筑領域綠色低碳轉型發展提供了可推廣和復制的經驗,助力“雙碳”目標的實現。
聲明:本站所有內容,凡注明來源:綠建之窗”或“本站原創”的文字、圖片等,版權均屬本網所有,其他媒體、網站等如需轉載、轉貼,請注明來源為“綠建之窗”。凡注明"來源:XXX"的內容,為本網轉載自其他媒體,轉載目的是傳遞更多信息,并不代表本網贊同其觀點和對其真實性負責。如有侵權,也請第一時間聯系我們。對不遵守聲明或其他違法、惡意使用本網內容者,本站保留追究其法律責任的權利。管理員QQ: 4993067 32533240,緊急聯系方式:18501126985 13693161205。
-
- 相關文章
-
-
12-09河南省住房和城鄉建設廳等部門關于強化金融支持綠色建筑產業發展的通知
-
12-06建筑產品碳標簽:從 “被動合規” 到 “主動領跑”,建筑企業的 “綠色競爭力” 該如何打造?
-
12-06一文讀懂綠色建筑:環保與舒適的完美融合
-
12-04關于《福建省綠色建筑新技術擬推廣目錄(2025年)》的公示
-
12-03吉林▎超低能耗建筑項目最高補助200萬
-
11-30全球五大綠色建筑標準
-
11-30什么是中國的綠色建筑
-
11-28河南省節能降碳專項資金及項目建設管理辦法
-
新聞資訊
本欄最新更新
-
01-15江西廣東▎印發《零碳園區建設方案》,建設任務:江西10個、廣東25個
-
01-15遼寧省住房和城鄉建設廳|關于印發《遼寧省“好房子”評價導則(試行)》的通知
-
01-14江西 廣東 ▎印發《零碳園區建設方案》,鼓勵園區新建建筑對標超低能耗建筑
-
01-14湖南省發布新版綠色建筑工程設計要點將于2026年起執行
-
01-13廣州|《美麗廣州建設規劃》印發,要求建設一批近零能耗建筑工程
-
01-13加大“好房子”供給!住建部發文
-
01-12把握好高質量發展和高水平保護的關系
-
01-12《綠色工廠評價通則》國家標準發布
-
01-11讓“好房子”成為綠色建筑和建筑業提質升級的最大應用場景
-
01-11綠色建材迎來利好!商務部等9部門聯合發文推進綠色消費
本欄推薦
閱讀排行
通信地址: 北京市豐臺區南四環西路128號院諾德中心一期2號樓12層1201室 郵編:100070 網站合作:QQ:1658253059 電話: 13693161205 18501126985
京公網安備11010602007284號 京ICP備14061276號-3
51LA統計



