-
深圳杭州 ▎兩個新超低能耗項目的詳細解讀
時間:2025-08-06 09:18:50 作者:GBWindows 來源:行業網站 閱讀:481內容摘要:深圳市華章新筑項目深圳龍華區/住宅建筑2025年首批超低能耗試點項目來源|深安居近日,深圳市住房和建設局公布了全市2025年第一批超低能耗建筑及近零碳建筑試點項目。華章新筑成功通過超低能耗建筑評審,成為全市7個試點項目中唯一的住宅類項目。華章新筑位于龍華區觀湖坂瀾大道與新樟路交匯處,用地面積約2.4萬㎡,總建筑面積約1...
深圳市華章新筑項目
深圳龍華區/住宅建筑
2025年首批超低能耗試點項目
來源|深安居
近日,深圳市住房和建設局公布了全市2025年第一批超低能耗建筑及近零碳建筑試點項目。華章新筑成功通過超低能耗建筑評審,成為全市7個試點項目中唯一的住宅類項目。
華章新筑位于龍華區觀湖坂瀾大道與新樟路交匯處,用地面積約2.4萬㎡,總建筑面積約17.3萬㎡,建筑結構高度約100米,綠化覆蓋率40.03%。項目由5棟住宅塔樓、6028個混凝土模塊組成,采用“標準化+工業化+數字化+智慧化+綠色化”解決方案,僅用365天建成交付,可提供2740套保障性租賃住房。
華章新筑項目1棟ABC單元、2棟、3棟為超低能耗建筑試點項目,建筑面積12.42萬m2。
項目建筑設計充分考慮自然通風、自然采光、建筑外遮陽、建筑保溫隔熱等被動式措施;機電系統方面選用高效空調、LED節能燈具、節能電梯;可再生能源應用方面,屋頂鋪設太陽能光伏系統,并應用“光儲直柔”系統,減少項目對傳統能源的依賴,實現節能降碳目標,可作為夏熱冬暖地區節能減碳示范建筑向全社會推廣。
01 自然通風方面
建筑朝向迎合場地主導風向,同時優化建筑空間及平面布局,臥室設開敞式陽臺,套內外窗有效通風換氣面積占套型地面面積比例為12.18%至15.84%,為室內形成自然通風提供有利條件。
02 建筑遮陽方面
主要通過陽臺形成自遮陽,部分房間設置外遮陽,同時外窗均采用中空LOW-E玻璃,進一步降低房間太陽輻射得熱。
03 建筑保溫隔熱方面
屋頂采用擠塑聚苯乙烯泡沫塑料,外墻采用水性納米中空玻璃微珠保溫隔熱材料,外窗采用斷熱鋁合金窗+Low-E中空玻璃,降低室內外溫差形成的空調冷負荷。
通過以上被動式技術措施,降低室內空調負荷和用能時間,在此基礎上進一步應用主動式節能措施,包括采用LED節能燈具、節能電梯等。
04 節能電梯應用
采用滿足《電梯能效標準》VD14707中的A級能效的節能電梯。
05 可再生能源
主要通過建設住宅屋面分布式光伏、光伏+停車場超快充電樁、智能儲能、V2G智能充放電等技術應用,光伏綠電降低建筑耗能,儲能削峰填谷降低峰期用電降低對電網壓力,全液冷超充系統提供運行低噪、高可靠,降低全生命周期成本;通過超充終端+快充終端的靈活組合和智能算法等技術,實現車主體驗和運營效益的靈活配置。
除此之外,2024年2月,深圳市首個住宅類“光儲充放”一體化項目落地華章新筑。
有效利用項目住宅樓頂、停車場等保障性住房配套空間,融入光伏發電、新型儲能、柔性用電、液冷超充、虛擬電站、V2G等先進技術,開展超級快充、柔性充電、光儲直柔等新模式應用,已獲評深圳市首批13個“光儲直柔”試點項目中唯一的居住建筑類項目。

06 經濟效益
在降低小區能耗碳排的同時,通過光伏發電減少電網用電、儲能峰谷價差節約電費、液冷超充系統對園區及周邊新能源車提供“一杯咖啡,滿電出發”的超快充電體驗。通過設置光伏系統,光伏年發電量約58萬度,按平均電價約0.7元/kwh計,預估年節約運行電費約40.7萬元。
07 環境效益
通過引入高效機電設備與大面積太陽能光伏系統,光伏系統年減碳量為262.23tCO2/a,空調系統年減碳量為68.91tCO2/a,有效降低了能源消耗和碳排放,減少了對傳統能源的依賴,有助于緩解環境污染和溫室氣體排放問題,對推進區域環境提升具有積極意義。
臨安中心城區新建電信大樓及辦公樓項目
杭州臨安/辦公建筑
超低能耗建筑設計階段認證
來源|中瀚設計集團有限公司 
01 項目概況
杭州市臨安中心城區zx-03-10地塊(新建電信大樓及辦公樓項目)總建筑面積12535㎡,地上11層,預計2026年竣工。

超低能耗建筑認證證書

總平面圖
02 節能設計目標
本項目位于夏熱冬冷氣候區,通過模擬計算,項目實際達到:
-
建筑綜合節能率51.75%
-
建筑本體節能率39.47%
-
可再生能源利用率24.72%
03 關鍵技術體系解析
建筑設計
總平面布置充分利用場地的自然資源,夏季及過渡季節建筑風場人行高度處通風良好,無大面積風影區滯留區,風速大小適宜,有利于夏季通風和冬季防風;通過外窗面積和窗型的優化,保障室內自然采光與通風效果。
建筑形體示意圖
高性能圍護結構設計
外墻系統:采用100mm厚巖棉外保溫(傳熱系數K=0.40 W/(㎡·K)),并輔以50mm無機輕集料保溫板,形成雙保溫層構造。
技術要點: 巖棉的高防火性能(A級不燃)與無機保溫板的抗裂性相結合,兼顧安全與耐久性。
外窗系統:選用三玻兩腔中空玻璃(5+12A+5+12A+5),搭配雙銀Low-E鍍膜和隔熱鋁合金型材,整體傳熱系數K=1.80 W/(㎡·K)。
技術要點:雙銀Low-E鍍膜可選擇性透過太陽輻射,夏季阻隔熱量進入,冬季減少室內熱損失,實現動態節能。
屋面構造:種植屋面與普通屋面均采用XPS擠塑聚苯板(K=0.25 W/(㎡·K)),但種植屋面額外增加防水、排水及植被層,既提升隔熱性能,又緩解城市熱島效應。

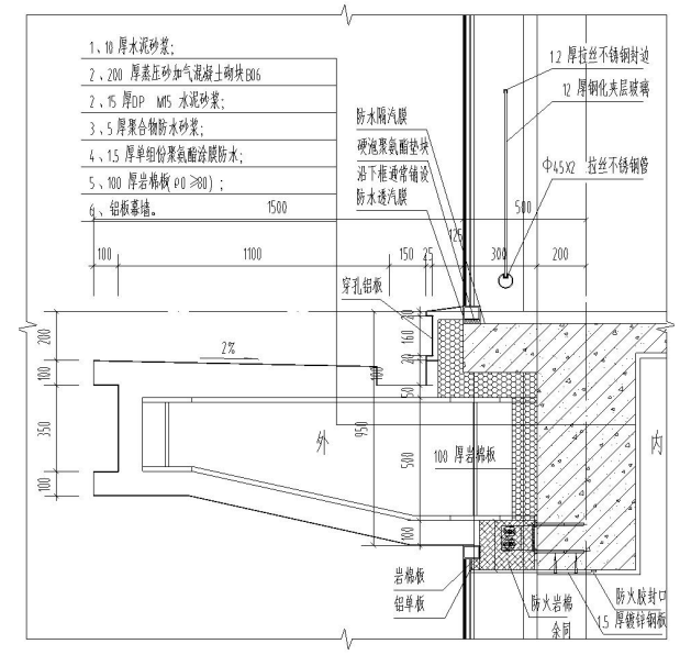
干掛外墻節點大樣
精細化無熱橋與氣密性控制
氣密性措施:在外墻內側設置連續抹灰層作為主氣密層,門窗洞口采用防水隔汽膜+防水透汽膜雙重密封,管道穿墻部位預留套管并采用硅酮密封膏封堵。
技術邏輯:通過多層次密封體系,將建筑氣密性控制在N50≤0.6 h?1(換氣次數),減少無組織通風帶來的能耗損失。
無熱橋設計: 對女兒墻、幕墻連接點、地下室頂板等關鍵部位進行熱橋模擬(如THERM軟件分析),確保內表面溫度高于露點溫度。例如,女兒墻內外側均做保溫包覆,幕墻與結構層之間填充防火巖棉。
設計價值:避免局部結露霉變,同時降低整體熱損失5%~10%。

標準層氣密區示意圖

垂直氣密區示意圖

女兒墻節點大樣

幕墻節點大樣
高效能源系統集成
空調系統:采用變冷媒流量多聯機(VRF),按辦公區、設備區等不同功能分區獨立控制,綜合APF(全年性能系數)達4.5以上。
技術適配性:VRF系統部分負荷效率高,適合辦公樓間歇使用特點,較中央空調系統節能15%~20%。
新風系統: 全熱交換器(焓效率≥70%)與CO?濃度監測聯動,實現新風量按需調節。過濾器對PM0.5的一次通過效率達60%,顯著提升室內空氣品質(IAQ)。
創新點:熱回收與空氣凈化功能整合,減少能耗同時保障健康環境。
透視圖
可再生能源耦合應用
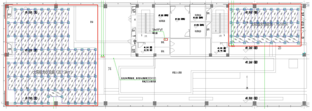
光伏系統:屋面鋪設單晶硅組件(408㎡),通過傾角與方位角優化設計(杭州地區推薦25°傾角),年發電量79,216 kWh,約占建筑總用電量的20%。
技術細節:采用組串式逆變器,降低陰影遮擋影響,系統效率達82%以上。
空氣源熱泵熱水系統:選用COP 4.64的高效機組,為食堂供應55℃生活熱水,配合500L儲熱水箱平衡供需波動。
經濟性分析:相比電熱水器,年節省電費約3.2萬元,靜態回收期約4年。

構架層光伏平面布置圖

屋頂全年日照輻射總量圖
智慧運維平臺
能耗監測系統:對照明、空調、插座等分項計量,數據上傳至云平臺生成能耗對標報告,輔助管理決策。
樓宇自控系統(BAS):基于預設策略自動啟停設備(如夜間空調設定溫度調整),異常工況實時報警,預計可降低運行能耗8%~12%。
照明控制:采用DALI調光系統,通過照度傳感器與人員感應器聯動,實現辦公區照度恒定(300lx)且無人時自動關閉。
04 增量成本分析
項目采用超低能耗技術帶來的增量成本約為342.68萬元,單位面積增量成本約273.38元/㎡,主要分配如下:
-
被動式技術:88.51%
-
主動式技術:2.35%
-
自控系統:9.14%
聲明:本站所有內容,凡注明來源:綠建之窗”或“本站原創”的文字、圖片等,版權均屬本網所有,其他媒體、網站等如需轉載、轉貼,請注明來源為“綠建之窗”。凡注明"來源:XXX"的內容,為本網轉載自其他媒體,轉載目的是傳遞更多信息,并不代表本網贊同其觀點和對其真實性負責。如有侵權,也請第一時間聯系我們。對不遵守聲明或其他違法、惡意使用本網內容者,本站保留追究其法律責任的權利。管理員QQ: 4993067 32533240,緊急聯系方式:18501126985 13693161205。
-
- 相關文章
-
-
12-09河南省住房和城鄉建設廳等部門關于強化金融支持綠色建筑產業發展的通知
-
12-06建筑產品碳標簽:從 “被動合規” 到 “主動領跑”,建筑企業的 “綠色競爭力” 該如何打造?
-
12-06一文讀懂綠色建筑:環保與舒適的完美融合
-
12-04關于《福建省綠色建筑新技術擬推廣目錄(2025年)》的公示
-
12-03吉林▎超低能耗建筑項目最高補助200萬
-
11-30全球五大綠色建筑標準
-
11-30什么是中國的綠色建筑
-
11-28河南省節能降碳專項資金及項目建設管理辦法
-
新聞資訊
本欄最新更新
-
01-15江西廣東▎印發《零碳園區建設方案》,建設任務:江西10個、廣東25個
-
01-15遼寧省住房和城鄉建設廳|關于印發《遼寧省“好房子”評價導則(試行)》的通知
-
01-14江西 廣東 ▎印發《零碳園區建設方案》,鼓勵園區新建建筑對標超低能耗建筑
-
01-14湖南省發布新版綠色建筑工程設計要點將于2026年起執行
-
01-13廣州|《美麗廣州建設規劃》印發,要求建設一批近零能耗建筑工程
-
01-13加大“好房子”供給!住建部發文
-
01-12把握好高質量發展和高水平保護的關系
-
01-12《綠色工廠評價通則》國家標準發布
-
01-11讓“好房子”成為綠色建筑和建筑業提質升級的最大應用場景
-
01-11綠色建材迎來利好!商務部等9部門聯合發文推進綠色消費
本欄推薦
閱讀排行
通信地址: 北京市豐臺區南四環西路128號院諾德中心一期2號樓12層1201室 郵編:100070 網站合作:QQ:1658253059 電話: 13693161205 18501126985
京公網安備11010602007284號 京ICP備14061276號-3
51LA統計



