-
以項目為例 ▎新風空調一體機在夏熱冬冷地區超低能耗建筑中的應用
時間:2024-11-25 10:13:50 作者:GBWindows 來源:行業網站 閱讀:805內容摘要:0 引 言我國于2008年開始引入以德國為代表的歐洲被動式超低能耗建筑。目前,全國已有大量建成的或建設中的被動式建筑項目,嚴寒、寒冷、夏熱冬冷和夏熱冬暖等各個氣候區均有分布。被動式超低能耗建筑“更加節能、更加舒適、更好空氣品質、更高質量保證”的特點,使其成為推動我國建筑節能工作、......0 引 言
我國于2008年開始引入以德國為代表的歐洲被動式超低能耗建筑。目前,全國已有大量建成的或建設中的被動式建筑項目,嚴寒、寒冷、夏熱冬冷和夏熱冬暖等各個氣候區均有分布。被動式超低能耗建筑“更加節能、更加舒適、更好空氣品質、更高質量保證”的特點,使其成為推動我國建筑節能工作、實現“雙碳”目標以及打造“好房子”的重要途徑。
夏熱冬冷地區氣溫日溫差小,夏季悶熱高濕,最熱月平均氣溫為26.5~40℃;冬季濕冷,最冷月平均氣溫為0~8℃,且冬夏兩季持續時間長,全年相對濕度較高,因此建筑會出現供暖、供冷、通風與除濕等多種需求。新風空調一體機集制冷、制熱、新風換氣、凈化和除濕等功能于一體,能滿足住戶對健康、舒適和節能的多重需求。
1 新風空調一體機概述
1.1 新風空調一體機的工作原理
新風空調一體機是超低能耗建筑的“呼吸系統”,一般由空氣源熱泵、變頻無級調速風機、全熱交換機芯、空氣過濾器、電動調節送風百葉和電動調節氣密閥等組成,其工作原理如圖1所示。
圖1 新風空調一體機工作原理圖
室外新風通過新風閥、濾網、高效熱交換濾芯、換熱器和送風機處理后進入室內。當進入的新風更有利于加快室內溫濕度平衡時,如夏季夜間室外新風溫度低于室內空氣溫度或過渡季節時,機組的旁路自動開啟,即此時新風不經過換熱濾芯換熱直接進入室內,避免了新風和排風之間的不利換熱。室內污濁空氣經過高效換熱濾芯和排風機排至室外。室內循環空氣經過粗效過濾網、回風閥、變頻送風機、高效濾網和翅片后送入室內,系統的冷熱源主要靠變頻空調提供。
由于被動房氣密性較好,因此室內人員散濕、衣物晾曬散濕及敞開水面的水分蒸發基本可以滿足室內濕度的需求,所以新風空調一體機可以不安裝加濕模塊。對于高濕地區,新風空調一體機可以增加除濕裝置以改善室內濕環境。
新風空調一體機中的熱回收換熱器按照原理不同分為轉輪換熱器、板式換熱器、溶液循環式換熱器、熱管式換熱器和溶液吸收式換熱器等。每種熱回收裝置具有如下運行原理、工作特性、運行參數、使用場合和適用工況。
(1)轉輪換熱器。該裝置體積較大,占用空間大。因需設置轉動機構,轉動會消耗能量。此外,由于轉輪換熱器風壓壓損較大,存在氣流滲漏,因此會發生交叉污染現象。適用于溫差較大的新風熱回收系統。
(2)板式換熱器。該裝置只回收顯熱,無法回收潛熱,使用壽命長,方便維護保養,換熱效率高。適用于室內外溫差大、濕度小的地區。
(3)溶液循環式換熱器。該裝置的室內排風與室外新風完全隔離,兩者不直接接觸,不會產生交叉污染。吸收熱量側和釋放熱量側通過管道連接,管道布置方式靈活多樣,對空間要求不高,安裝方便快捷。不過,該裝置只能對顯熱進行回收,不能回收利用潛熱,且管路中需配置循環泵,將額外耗費能源動力,這使得換熱效率通常在60%以下。
(4)熱管式換熱器。該裝置布局緊湊合理,傳熱面積較大,無額外能源消耗。每根熱管自成換熱體系,不易堵塞,方便更換,換熱效率達60%~70%。不過,其不能對潛熱進行回收利用。
(5)溶液吸收式換熱器。該裝置在冬季無需考慮防凍措施,新風與排風完全獨立,不會產生交叉污染現象,且構造簡單、維護方便,運行較穩定。不過,該裝置尺寸較大,因此所占用的空間較大。此外,由于該裝置需配溶液泵,因此要消耗額外的動力能源。其噴灑的溶液可以除掉空氣中大部分細菌、微生物及可吸入顆粒物,能夠凈化空氣,全熱回收效率可達50%~85%,且該效率不會隨使用時間的增加而衰減。若室內存在有毒有害氣體,則該氣體會溶解在溶液中并隨溶液噴淋揮發,故不能采用此種設備。
基于熱回收效率、初投資和運行能耗等綜合考慮,轉輪換熱器或板式換熱器均可用于被動式超低能耗建筑中的新風空調一體機中。若兩者在顯熱效率和潛熱效率方面相差不大,板式換熱器由于不需要提供裝置運行轉動所需的電能,其能效高于轉輪換熱器。
1.2 新風空調一體機的運行模式
新風空調一體機支持多種氣流組織,可靈活應對各類空氣需求,如全新風模式、全循環風模式和混風模式。運行模式上,不同設備廠家的運行模式名稱略有差異,如舒適模式、節能模式和旅游模式可供切換,或自動模式、除濕模式、節能模式、凈化模式、靜音模式、富氧模式和離家模式。
住戶可自由選擇合適的模式進行調節。具體而言,舒適模式可盡可能使室外新鮮空氣起到室內供冷、供熱和降低污染物濃度的作用。新鮮空氣會先進入臥室,再流向客廳,最后從衛生間排至室外。同時,應盡量避免循環風的使用,以提高送風中新風的占比。節能模式可盡可能使室內循環風承載室內供冷、供熱和降低污染物濃度的要求。循環風取自客廳,經過濾、溫度調節后送至臥室,再流回客廳。旅游模式則針對建筑物內長時間無人居住時,不對溫度進行控制,減少每天的換氣量,節約能源消耗。
自動模式即自動打開循環風閥,啟動變頻送風機,系統根據室內溫度與用戶設定溫度之間的邏輯關系判斷進入制冷、制熱、送風或除濕模式,再根據PM2.5、CO2、VOC濃度以及室外環境溫度等空氣質量參數判讀是否需要打開或關閉新風閥;除濕模式以濕度控制為主,打開循環風閥,循環風機低速運行;節能模式下,系統根據室內溫度綜合智能判斷進入最佳的節能方案;凈化模式下,循環風機會按室內的PM2.5 濃度情況調整風速的大小,對室內粉塵進行過濾凈化;靜音模式即循環風機按靜音風速運行;開啟富氧模式時,新風閥與循環風閥同時打開,排風機根據CO2濃度調整風速,持續引進室外新風,保持室內空氣清新;離家模式下,系統將每隔一段時間自動打開新風閥、送風機和排風機,并根據室內空氣質量等級調節風速大小,保證室內空氣質量。
2 應用工程實例
2.1 設計概況
2.1.1 工程概況
湖南省株洲市青龍灣德國之家超低能耗建筑示范項目是夏熱冬冷地區第一棟被動房高層住宅。該項目建筑用地面積共14666.67m2,由4棟住宅樓組成,單棟樓建筑面積為6882m2,地上12層、地下1層,基底面積為625.62m2,外表面積為7610.7m2,包圍體積為20289.26m3;每單元設智能電梯1部,每戶設種植露臺,整棟屋頂設種植屋面。每棟樓設2個單元,每層共4戶,其室內面積分別為136m2、108m2、108m2和115m2。
每棟樓共計48戶,4棟樓共計192戶。該項目建筑外形如圖2所示。
圖2 株洲市青龍灣超低能耗建筑示范項目建筑外形
2.1.2 室內環境設計參數
該項目室內環境設計參數如表1所示。
表1 室內環境設計參數
室內環境一年四季處于舒適狀態,且應同時滿足以下規定:
(1)室內空氣溫度保持在20~26 ℃;
(2)室內空氣相對濕度宜保持在40%~60%;
(3)超溫頻率小于10%;
(4)室內CO2濃度不超過0.1%;
(5)室內圍護結構內表面溫度溫差不得超過3℃;
(6)門窗室內一側無結露現象。
2.1.3 能耗設計指標
本項目能耗設計指標如下:
(1)供熱需求指標為3.37kW·h/(m2·a),不超過10kW·h/(m2·a)(為用戶端的供熱消耗,不包括供熱制熱損失);
(2)制冷需求指標為19.27kW·h/(m2·a),不超過37kW·h/(m2·a);
(3)供熱負荷指標為5.3W/m2,制冷負荷指標為15.1W/m2;
(4)所有能耗的一次能源消耗總計120kW·h/(m2·a),包括家用電器、制冷、供熱等能耗;
(5)所有熱橋的熱橋損失系數均 <0.01W/(m·K)。
2.1.4 冷熱負荷指標
該項目設計熱負荷為36.47kW,熱負荷指標為5.3W/m2;冷負荷為103.91kW,冷負荷指標為15.1W/m2。
2.2 新風系統方案設計
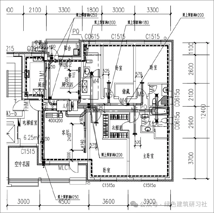
筆者以該項目某戶型為例進行新風系統設計的闡述,其室內新風系統布置如圖3所示。
圖3 室內新風系統布置圖
項目團隊基于被動式超低能耗建筑的特點,為了避免開窗通風造成的熱損失,降低能源消耗,同時達到空氣交換衛生方面的要求,采用專門帶熱回收的戶式新風系統,在為室內提供新風的同時,還為室內提供冷熱源,保證室內溫度在設定范圍內波動。
該戶型室內面積為136m2?;诜块g功能,設計人員將新風設備布置在過道的吊頂內,將客廳、臥室、餐廳、書房作為送風區,衛生間作為回風區,過道作為溢流區。衛生間的新風機則設為強制啟動模式,以達到衛生間通風換氣的目的。同時,設置了智能監測與控制系統。各個房間均設置有探測器,監測室內參數。主控面板位于客廳,集中顯示各房間溫度、相對濕度等參數。當有參數超標時,探測器會將信息傳遞給主控面板,主控面板則會發出指令對新風設備進行調整。
項目團隊選用的新風設備的技術參數如表2所示。
表2 新風設備的技術參數
此外,風管選用酚醛彩鋼復合風管制作風管。送風口選用電動雙層百葉風口,回風口選用單層百葉風口。送風、回風形式則采用上部側送風、頂部回風形式。
2.3 室內熱環境與耗電量監測
筆者對上述戶型室內環境參數進行為期1a(2022年11月11日至2023年11月10日)的跟蹤測量。該住戶室內配置了1臺多功能電表和1臺無線儲存型室內環境檢測儀,主要用于收集每日用電量和住戶室內溫度、相對濕度、PM2.5 濃度和CO2濃度。測量設備相關信息如表3所示。測量設備布置如圖4所示。多功能電表布置于樓梯間,室內環境監測儀布置于客廳通往房間的墻壁壁面。
表3 測量設備的相關信息
圖4 測量設備布置
該戶型全年測量時期內的室內溫度、相對濕度、PM2.5 濃度、CO2濃度和耗電量情況如圖5 所示。
圖5 全年室內各指標情況
由圖5可知,采用新風一體機系統后,住宅全年室內熱環境、空氣品質和能耗均符合DBJ 43/T544—2022《湖南省超低能耗居住建筑評價標準》設計規定。室內溫度全年波動范圍為22.1~25.9 ℃,平均值為24.1 ℃;相對濕度全年波動范圍為37%~64%,平均值為47.3%;CO2濃度全年波動范圍為0.04%~0.1391%,平均值為0.0628%,
全年范圍內僅發現2次數值超過限定值(0.01%);PM2.5濃度全年波動范圍為0~70μg/m3,平均值為10.5μg/m3。
各季節詳細描述如下:
(1) 春季室內溫度波動范圍為20.1~26.2℃,平均值為23.4℃;室內相對濕度波動范圍為48.0%~84.0%,平均值為63.0%;室內CO2濃度平均值為0.0568%;室內PM2.5濃度平均值為22μg/m3。
(2) 夏季室內溫度波動范圍為22.8~27.4℃,平均值為24.9℃;室內相對濕度波動范圍為40.0%~86.0%,平均值為63.0%;室內CO2濃度平均值為0.0615%;室內PM2.5濃度平均值為12μg/m3。
(3) 秋季室內溫度波動范圍為20.2~27.6℃,平均值為24.4℃;室內相對濕度波動范圍為40.0%~73.0%,平均值為57.4%;室內CO2濃度平均值為0.0584%;室內PM2.5濃度平均值為23μg/m3。
(4) 冬季室內溫度波動范圍為18.7~24.9℃,平均值為21.8℃;室內相對濕度波動范圍為38.0%~68.0%,平均值為51.1%;室內CO2濃度平均值為0.061%;室內PM2.5濃度平均值為29μg/m3。
此外,全年范圍內,日耗電量波動范圍為0.7~57.9kW·h,全年總耗電量為3995.8kW·h,全年單位面積耗電量為29.4 kW·h/m2,低于DBJ43/T544—2022中對于建筑全年能耗綜合值的限值[50 kW·h/(m2·a)]。可見,配備新風空調一體機的超低能耗住宅建筑能滿足居住者對室內環境舒適、高空氣品質和低能耗的需求。
3 結 論
新風空調一體機是基于被動式超低能耗建筑的能源環境需求研發的新型設備,是適應我國建筑節能市場發展、具有中國特色的終端功能裝置,可有效提高室內舒適度,并降低用戶能耗。
筆者基于新風空調一體機的工作原理和運行模式,結合夏熱冬冷地區現有被動式超低能耗建筑案例,分析了采用新風空調一體機后的室內熱環境、空氣品質和住戶耗電量,得出如下結論:(1)室內溫度全年波動范圍為22.1~25.9 ℃,平均值為24.1 ℃;相對濕度全年波動范圍為37%~64%,平均值為47.3%;CO2濃度全年波動范圍為0.0400%~0.1391%,平均值為0.0628%,室內溫度、相對濕度和CO2濃度均滿足該地區被動式超低能耗建筑標準限值;(2)PM2.5 濃度全年波動范圍為0~70μg/m3,平均值為10.5μg/m3,滿足國家和地方標準;(3)全年單位面積耗電量為29.4kW·h/m2,低于標準限值。
4 結束語
目前,新風空調一體機作為超低能耗建筑的“呼吸系統”發展迅速,未來一定會被更加廣泛地應用于超低能耗或零能耗建筑。筆者以株洲市青龍灣超低能耗建筑示范項目為例,對新風空調一體機在住戶中的應用及室內環境進行了分析與總結,驗證了新風空調一體機的應用對于營造超低能耗建筑舒適室內環境以及降低能耗的貢獻,希望能為類似項目提供一定的參考。
聲明:本站所有內容,凡注明來源:綠建之窗”或“本站原創”的文字、圖片等,版權均屬本網所有,其他媒體、網站等如需轉載、轉貼,請注明來源為“綠建之窗”。凡注明"來源:XXX"的內容,為本網轉載自其他媒體,轉載目的是傳遞更多信息,并不代表本網贊同其觀點和對其真實性負責。如有侵權,也請第一時間聯系我們。對不遵守聲明或其他違法、惡意使用本網內容者,本站保留追究其法律責任的權利。管理員QQ: 4993067 32533240,緊急聯系方式:18501126985 13693161205。
- 相關文章
-
-
11-23阿里巴巴超低能耗總部
-
11-12聚焦“超低能耗”,各地支持政策出爐
-
11-01項目 ▎47935m2的近零能耗電力中心
-
10-22減碳超50%!盤點廣東12大近零碳建筑典型案例
-
10-13項目▎夏熱冬暖地區首個超低能耗認證建筑
-
09-29項目 ▎北京一超低能耗校區主體即將完工
-
09-28項目 ▎全國首個近零能耗城市計算中心
-
09-22上海:發布4項超低能耗建筑管控要點(策劃/設計/施工/檢測)
-
新聞資訊
本欄最新更新
-
01-16《吉林省基本級綠色建筑設計導則》公示
-
01-15江西廣東▎印發《零碳園區建設方案》,建設任務:江西10個、廣東25個
-
01-15遼寧省住房和城鄉建設廳|關于印發《遼寧省“好房子”評價導則(試行)》的通知
-
01-14江西 廣東 ▎印發《零碳園區建設方案》,鼓勵園區新建建筑對標超低能耗建筑
-
01-14湖南省發布新版綠色建筑工程設計要點將于2026年起執行
-
01-13廣州|《美麗廣州建設規劃》印發,要求建設一批近零能耗建筑工程
-
01-13加大“好房子”供給!住建部發文
-
01-12把握好高質量發展和高水平保護的關系
-
01-12《綠色工廠評價通則》國家標準發布
-
01-11讓“好房子”成為綠色建筑和建筑業提質升級的最大應用場景
本欄推薦
閱讀排行
通信地址: 北京市豐臺區南四環西路128號院諾德中心一期2號樓12層1201室 郵編:100070 網站合作:QQ:1658253059 電話: 13693161205 18501126985
京公網安備11010602007284號 京ICP備14061276號-3
51LA統計



